13208166786
硬体墙韩式帐篷(天籁之居)

硬体墙韩式帐篷(天籁之居)

主材:优质碳钢钢管(氟碳漆防锈处理)
外膜:PVDF优质膜材
内膜:帆布+珍珠棉铝箔
墙体:保温硬体墙+中空玻璃
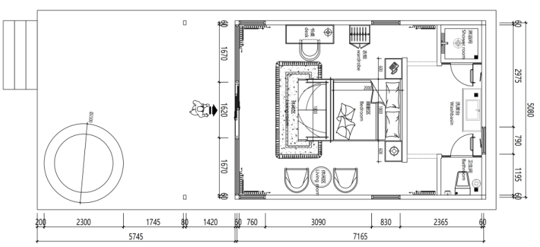
规格:5m*9m
套内面积:35㎡
投影面积:68.4㎡
抗风等级:10级以下

自然融合美学:天籁之居采用大面积落地窗设计,引入周边山水景观,配合木质元素与暖色调灯光,打造亲近自然的沉浸式居住空间。部分区域或设置开放式露台,让住客在清晨鸟鸣中醒来,感受“天人合一”的意境。
声学优化系统:借鉴汽车领域的静音技术(如双层隔音玻璃、吸音材料),通过建筑结构的精密计算减少外界噪音干扰,同时内置高品质音响设备,支持环绕立体声播放自然白噪音或舒缓音乐,强化“天籁”主题的体验感。
产品咨询
产品介绍

硬体墙韩式帐篷(天籁之居)

硬体墙韩式帐篷(天籁之居)

硬体墙韩式帐篷(天籁之居)

硬体墙韩式帐篷(天籁之居)

硬体墙韩式帐篷(天籁之居)

上一篇:
云逸小栈帐篷
下一篇:
野营帐篷

产品咨询